• Home
  • MakerSpace Blogs
    • 3D Printing
    • AI News
    • Art
    • Classroom
    • Crafts
    • Ideas
    • Makerspace for Education
    • Projects
    • Resources
    • Robotics
    • STEM
    • Tools
  • MakerSpace Videos
    • Makerspace for Education
    • Makerspace Ideas
    • Makerspace Projects
    • Makerspace Resources
    • Makerspace Robotics
    • Makerspace STEM
    • Makerspace Tools
  • Our Sponsor
No Result
View All Result
No Result
View All Result
Home Crafts

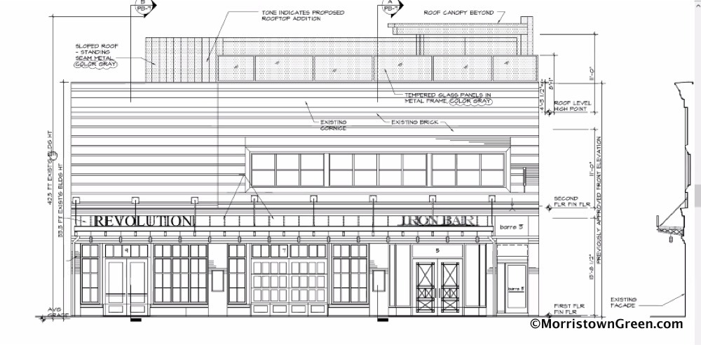
Iron Bar tries again for rooftop dining–this time before the Morristown zoning board

April 17, 2023
in Crafts
0
Iron Bar tries again for rooftop dining–this time before the Morristown zoning board
Share on FacebookShare on Twitter

 

To be clear: Rooftop dining is not permitted by Morristown’s zoning. Not explicitly, anyway.

The zoning board came to that conclusion after three-and-a-half hours at a virtual hearing on Wednesday.

That means the Iron Bar/Revolution must seek a use variance, which is much harder to obtain than the conditional approval its owner hoped for, to place 134 seats and up to 230 occupants atop the Iron Bar on South Street.

It’s the latest challenge for the Iron Bar’s rooftop aspirations, which were dealt a blow in April 2021 when the town council, citing noise concerns, shot down a request to extend its liquor license to the roof. Before appealing that decision to the state, Iron Bar lawyers want to secure zoning approvals for the project.

So Iron Bar/Revolution attorney Steven Schepis on Wednesday sought an interpretation of whether rooftop dining…

Read full Story ➤
Previous Post

Macomb County library events week of April 16 and beyond – Macomb Daily

Next Post

Unique points about NJIT | How to answer Why this university | USA Student visa 2023 🇺🇸

Archive

Most commented

Molded by passion: Inside the Stew Makerspace with Bethany Hensley – The Scarlet & Black

Writing the Book on Early Childhood Education

Sheep demos, fiber crafts mark last day of Lake Metroparks’ Lamb Jam 2026 – News-Herald

Maker Space Labs provide students with high-tech tools

Alexandria high school library receives crowdfunded LEGO kits for student makerspace

OriginLabs now offers free makerspace memberships to University Park students

MarkerSpace America

MakerSpace America, Inc.
216 N Mosley Street #273
Wichita, KS 67202

Tags

Makerspace 3D Printing Makerspace Art Makerspace Classroom Makerspace Crafts Makerspace for Education Makerspace Ideas Makerspace Projects Makerspace Resources Makerspace Robotics Makerspace STEM Makerspace Tools

Recent News

Molded by passion: Inside the Stew Makerspace with Bethany Hensley – The Scarlet & Black

Molded by passion: Inside the Stew Makerspace with Bethany Hensley – The Scarlet & Black

May 18, 2026
Writing the Book on Early Childhood Education

Writing the Book on Early Childhood Education

May 15, 2026

© 2020 Copyright - 2018-2021 by MakerSpace America, Inc. A 501(c)3 Nonprofit Organization.

No Result
View All Result
  • Home
  • MakerSpace Blogs
    • 3D Printing
    • AI News
    • Art
    • Classroom
    • Crafts
    • Ideas
    • Makerspace for Education
    • Projects
    • Resources
    • Robotics
    • STEM
    • Tools
  • MakerSpace Videos
    • Makerspace for Education
    • Makerspace Ideas
    • Makerspace Projects
    • Makerspace Resources
    • Makerspace Robotics
    • Makerspace STEM
    • Makerspace Tools
  • Our Sponsor

© 2020 Copyright - 2018-2021 by MakerSpace America, Inc. A 501(c)3 Nonprofit Organization.

Welcome Back!

Login to your account below

Forgotten Password?

Retrieve your password

Please enter your username or email address to reset your password.

Log In

Add New Playlist